Продолжить в этом городе?
Продолжить в этом городе?
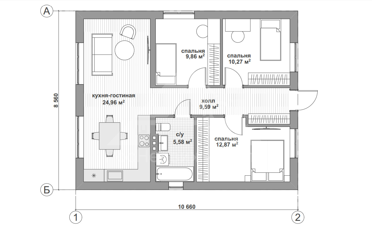
Дом, 73 м², 14 сот. Владимирская область, Юрьев-Польский муниципальный округ, село Кумино
Основные характеристики
Описание
Номер объекта - 1539 Предлагаем к продаже проект 1-этажного дома Нью 73. Срoк cтpоительcтвa от 3 дo 6 мeсяцев. Участок входит в стоимость. При покупке действует одна акция на выбор из предложенных вариантов: 1. Скидка 15% при наличном расчете 2. Земельный участок в подарок при строительстве на нашем участке в селе Кумино. Кадастровый номер участка - 33:04:062102:911 Звоните ответим на все вопросы. Адрес: Владимирская область, Юрьев-Польский муниципальный округ, село Кумино Цена участка - 30тыс.руб. за сотку Комплектация дома "Базовая": В "Базовую" комплектацию дома входит полный закрытый теплый контур: • Несущие стены газобетон / теплая керамика • Утепленная кровля из металлочерепицы • Окна двухкамерные с тройным стеклопакетом • Металлическая входная дверь • Фундамент (в зависимости от участка) • Утепленная отмостка О доме: • Площадь дома: 73.00 м2 • Высота потолка: 2.90 м. • Кровля: кликфальцевая • Подшивка свесов софитами • Фасад: штукатурка Короед Инфраструктура: • Водоснабжение: Есть в населенном пункте • Отопление: Нет • Газ: Есть в населенном пункте • Канализация: Нет • Электричество: Есть в населенном пункте В доме: • Кухня - гостиная: 25.00 м2 • Комнаты: 3, площадью 10-13-10 м2 • Санузел: Совмещенный в доме • Ванная: Стандартная Расположение в доме: На этаже расположено: Кухня-гостиная, 3 Спальни, Сан. Узел, Холл Об участке: • Площадь земельного участка: 14.44 соток • Форма: Прямоугольная • Рельеф участка: Ровный • Разрешенное использование: Сельскохозяйственное использование • Забор: Отсутствует • Границы участка: Уточнены • Земля: Не разработана • Дополнительные постройки на участке: Ничего Окружение: • Дорога к дому: Асфальт. Дорога в отличном состоянии • В зимнее время дом доступен • До ближайшей остановки общественного транспорта: менее 200 метров • В шаговой доступности следующие объекты: Остановка общественного транспорта, Лес, Водоем Если вас заинтересовал дом — обращайтесь за подробностями. Всегда рады помочь. Помощь в получении кэшбека при покупке недвижимости и ипотеки. Гарантируем безопасность сделки.
Вам может быть интересно














